Stan 1-
DVOSOBAN STAN U PRIZEMLJU, UKUPNE POVRŠINE 104,95 m2 S PRIPADCIMA
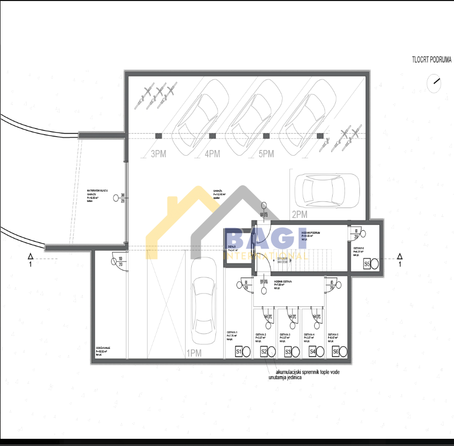
Dvosoban stan u prizemlju zgrade stambene površine 84,15 m2, kojemu pripada natkrivena terasa površine 16,19 m2, dva parkirna mjesta, te spremište u podrumu zgrade od 7,70 m2. Ukupna korisna površina stana s pripadcima iznosi 104,95 m2. Stan 1 se sastoji ...
od hodnika, ostave, kupaonice, spavaće sobe, spavaće sobe s pripadajućom kupaonicom, kuhinje, blagovaonice i dnevnog boravka, te natkrivene terase. Stanu pripada spremište u podrumu zgrade, te dva vanjska parkirna mjesta.
Orijentacija stana: jugozapad
ZA DODATNE INFORMACIJE I PREGLED KONTAKTIRAJTE NAS NA:
Laura +385 99 461 9694
MAIL: laura.starcic@bagi-immobilien.hr
Marko +385913274402
Mail: marko.orsag@bagi-immobilien.hr
Svemir +385 (0)92 365 8087
Email: prodaja@bagi-immobilien.hr
Samostojeća stambena zgrada sa šest stambenih jedinica, katnosti Po+Pr+2+ravna krovna terasa, nalazit će se na zemljištu veličine 673 m2.
U podrumu je predviđeno stubište, 6 ostava, prostorija za održavanje i parkirni prostor. Bruto površina podruma je 237,07m2.
U građenju zgrade koristit će se visoko kvalitetni materijali u skladu s najvišim standardima gradnje.
Za pripremu ogrijevnog/rashladnog medija (vode) za grijanje i hlađenje prostorija te za grijanje potrošene vode izvest će se uređaj dizalice topline zrak-voda.
Objekt će biti spojen na javnu vodovodnu mrežu i javnu kanalizaciju.
ID KOD AGENCIJE: 3457
BAGI INTERNATIONAL d.o.o.
Mob: 0923658087
E-mail: info@bagi-international.hr
https://bagi-nekretnine.hr