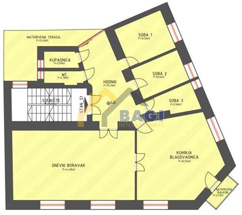
Stan se proteže kroz cijeli 1. kat zgrade koja se nalazi na uglu Vinogradske i Hercegovačke ulice. U naravi ima 155,04m2, a primjenjujući smanjene koeficijente na terase i spremište ima 138,69m2. Trenutno je iznajmljen.
Zgrada je sagrađena 1930. godine i sastoji se od 4. etaže (prizemlje, 1. kat, 2. kat i ...
potkrovlje). U naravi, u cijelom prizemlju se nalazi kafić, stan se proteže kroz cijeli 1. kat, dok se na 2. katu i potkrovlju nalaze još dvije stambene jedinice.
2013. godine stan je temeljito i potpuno renoviran: vanjska nova drvena stolarija s termo staklima napravljena u originalnom obliku, vrhunske termo rolete na automatsko podizanje/spuštanje, kompletno uređena unutarnja originalna stolarija, sve nove instalacije – struje, vode, grijanja, novi podovi od vrhunskog hrasta, visoki stropovi - 3,40m, stropne i podne izolacije, premium sanitarije, etažno centralno grijanje, Mitsubishi sustav hlađenja sa šest unutarnjih i dvije vanjske jedinice, video nadzor i vrhunski alarmni sustav, video portafoni, potpuno uređeno i popločeno spremište s instalacijama za vodu, struju, izvodima za veš mašinu, pripremom za uređaj za pročišćavanje vode, itd. Napravljena je građevinska priprema s instalacijama za kuhinju i dodatnu kupaonicu u slučaju korištenja stana kao stambenog prostora. U isto vrijeme i unutrašnje stubište zgrade je kompletno renovirano. Zgrada je prijavljena u program obnove fasada koji je subvencioniran od strane Grada Zagreba.
Za dodatne informacije i razgledavanje kontaktirajte na broj telefona: 0989655281
ID KOD AGENCIJE: 2717
Marijana Ilić
Agent s licencom
Mob: 0989655281
Tel: +385989655281
E-mail: marijana.ilic@bagi-international.hr
https://bagi-nekretnine.hr