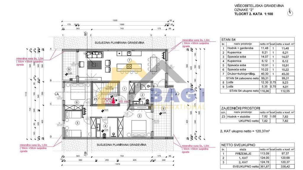
Pula-Novogradnja Penthouse S4 122,50m2+2 parkirna mjesto+spremište
U mirnom dijelu grada,u sambenoj zgradi sa samo 4 stana na 2 katu
ujedno i zadnjem cijelom etažom smjestio se ovaj stan.
Stan se sastoji od:ulaznog hodniha,prostranog dnevnog boravka sa kuhinjom i blagovaonom,
tri spavaće sobe,dvije kupaone i dvije loggie.
Stanu pripada dva parkirna mjesta i spremište.
Sve uračunato u ...
cijenu stana.
Kako je prodavatelj pravna osoba, kupac je oslobođen plaćanja poreza na promet nekretnina.
Tehnički opis objekta
Temeljna ploča, zidovi, međukatne i krovna konstrukcija, nosivi stupovi su armiranobetonski
Toplinska izolacija zidova od 10 do 15 cm, toplinska izolacija krova 15 cm; od EPS-a i kamene vune
fasada sa završnim slojem od kamena i plemenite završno dekorativne žbuke RÖFIX u prirodnim tonovima
Terase i krov hidro izolirane sistemom SIKA ili sl.
Dodatna termoizolacija prema svim negrijanim prostorima
Ugradnjom kvalitetnih materijala i opreme osigurana je niska potrošnja energije i visoki energetski standard A +
Garažno mjesto i spremišta unutar objekta, vanjska parkirna mjesta
Senzorno paljenje rasvjete na stubištu i hodnicima
U želji osiguranja i uživanja u izvrsno osvjetljenim stambenim prostorima sve ostakljene površine su većih dimenzija
Pvc vanjska stolarija, izo stakla punjena argonom sa LOW premazom, visina 250cm
Rolete za zaštitu od sunca sa podžbuknom termoizolacijskom kutijom
Podne i zidne obloge – talijanska keramika 1 klase
Balkonske ograde od lameliranog stakla sa aluminijskim profilima
Kao izvor toplinske i rashladne energije predviđene su inverterske klima jedinice
Podno grijanje u kupaonici
Ugrađeni senzori za detekciju dima i ugljičnog monoksida u sve stambene jedinice radi dodatne sigurnosti cjelokupnog objekta
Oprema kupaonica od renomiranih proizvođača s visoko kvalitetnim slavinama (HANSGROHE ili sl…),
walk in tuš, wc školjke konzolnog tipa sa soft close spuštanjem daske, niskošumne odvodno-dovodne cijevi
HORMANN vrata (ulazna vrata za stanove su vatrootporna i protuprovalna)
Video portafon URMET ili sl..
Odlagalište i recikliranje otpada predviđeno na zasebnom mjestu izvan objekta
Za sve informacije nazvati na broj +385 91 1509059 (Viber / WhatsApp)
ili na mail:
aida.kudic@bagi-international.hr
ID KOD AGENCIJE: 4130
Aida Kudić
Agent s licencom
Mob: 0911509059
E-mail: aida.kudic@bagi-international.hr
https://bagi-nekretnine.hr