Staro mjesto za nalaženje
Unaprijeđenje internetske stranice sufinancirala je Europska unija iz Kohezijskog fonda. Detalji projekta
Staro mjesto za nalaženje
Unaprijeđenje internetske stranice sufinancirala je Europska unija iz Kohezijskog fonda. Detalji projekta
Aktivan od: 23.12.2024
Oglas pregledan: 72 puta
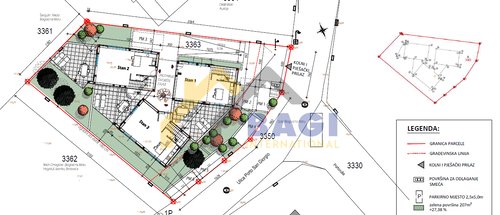
Kuća u Biogradu na Moru SAMOSTOJEĆA -NOVOGRADNJA
670.000 €
Reklama

Osnovni podaci
Stambena površina
125 m²
Broj soba
4
Tip gradnje
novogradnja
Godina izgradnje
2024
Energetski certifikat
A
Više o nekretnini
Broj parkirališnih mjesta
2
Reklama

Šifra oglasa: 4786366
Aktivan od: 23.12.2024
Oglas pregledan: 72 puta
Reklama

Reklama

Reklama
